This equipment is designed for hospital wards and laboratories to handle infectious medical waste on-site. It effectively reduces waste volume and weight while ensuring pathogens are killed through high-temperature steam sterilization.
The collected medical waste is manually fed into a sterilizer. Inside, a shredding system breaks the waste into small particles. A pre-vacuum method purges air before high-temperature, high-pressure saturated steam is introduced. Post-treatment, a vacuum process removes remaining air and moisture. The sterilized waste, now safe as ordinary household waste, is then discharged.
Step-by-Step Operation:
| System Unit | Project | Technical Parameters |
|---|---|---|
| Processor Parameters | Processing Capacity | 60kg/h |
| Batch Processing Capacity | 25-30kg | |
| Sterilization Level | 8Log10 Inactivation | |
| Volume Reduction | 85% | |
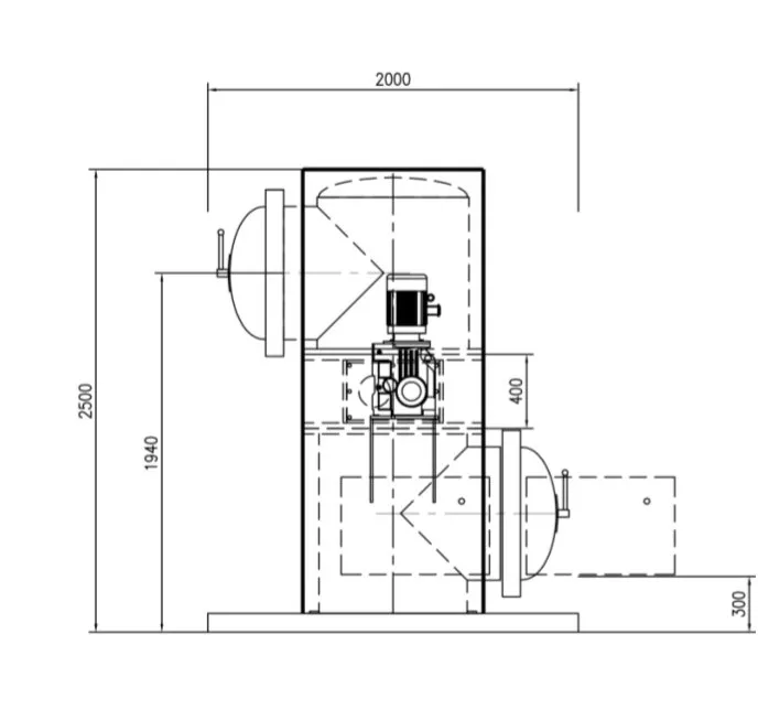
| Vertical Vessel | Volume | 420L |
| Material | Stainless Steel | |
| Design Pressure | 0.4MPa | |
| Working Temperature | 134℃ | |
| Crushing System | Power | 7.5kw |
| Blade Material | Imported High-strength Material | |
| Control System | Intelligent PLC | Human-machine interaction, APP remote monitoring |










Focused on green technology and smart environmental protection, the company integrates international technological perspectives to drive the industry towards intelligence and resource efficiency. The solutions focus on ecological governance and sustainable development through disruptive technological innovation.


